Technical data
Size:3"~12"
Working pressure:3"~12"362psi
Design standard:AWWA C515
Mechanical Joint End standard:AWWAC153/A21.53
Tests:AWA C515
Temperature range:0~80℃

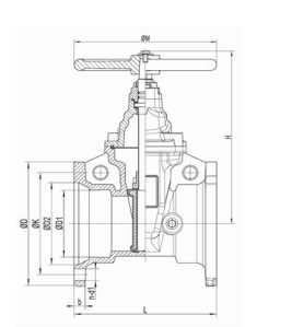
SIZE | OUTLINE(Inch) | END MECHANICAL JOINT(Inch) | |||||||
L | H | M | D | K | D2 | D1 | n-d1 | b | |
3 | 9.5 | 10.77 | 7 | 7.62 | 6.19 | 4.94 | 4.06 | 4-0.75 | 0.58 |
4 | 10 | 12.74 | 10 | 9.06 | 7.50 | 6.02 | 4.90 | 4-0.88 | 0.60 |
6 | 10.5 | 16.67 | 12 | 11.06 | 9.50 | 8.12 | 7.00 | 6-0.88 | 0.63 |
8 | 11.5 | 20.89 | 14 | 13.31 | 11.75 | 10.27 | 9.15 | 6-0.88 | 0.66 |
10 | 13 | 25.39 | 16 | 15.62 | 14.00 | 12.34 | 11.20 | 8-0.88 | 0.70 |
12 | 14 | 28.56 | 16 | 17.88 | 16.25 | 14.44 | 13.30 | 8-0.88 | 0.73 |

