Technical data
Sizs:DN50~DN300
Working pressure:PN16/PN25
Valve standard:EN1171
Flange standard:EN1092-2
Temperature range:0~80℃

Name of parts | Material |
Body | Ductile iron |
Wedge | Ductile iron+EPDM |
Stem nut | Bronze |
Stem | SS431 or SS304,SS316,bronze |
Bonnet | Ductile iron |
Bonnet Gasket | EPDM |
Sealing Ring | EPDM |
Upper cover | Ductile iron |
Sliding disc | Bronze |
Screw | Carbon steel with hot galvanization |
O-rings | EPDM |
Handwheel | Ductile iron |
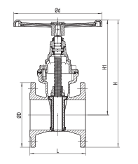
Dimensions | Pressure rating | Size(mm) | |||||
DN | inch | PN | φD | L | H1 | H | Φd |
50 | 2 | 16 | 165 | 150 | 256 | 338.5 | 203 |
25 | |||||||
65 | 2.5 | 16 | 185 | 170 | 256 | 348.5 | 203 |
25 | |||||||
80 | 3 | 16 | 200 | 180 | 273.5 | 373.5 | 203 |
25 | |||||||
100 | 4 | 16 | 220 | 190 | 323.5 | 433.5 | 300 |
25 | 235 | 441 | |||||
125 | 5 | 16 | 250 | 200 | 376 | 501 | 300 |
25 | 270 | 511 | |||||
150 | 6 | 16 | 285 | 210 | 423.5 | 566 | 300 |
25 | 300 | 573.5 | |||||
200 | 8 | 16 | 340 | 230 | 530.5 | 700.5 | 406 |
25 | 360 | 710.5 | |||||
250 | 10 | 16 | 400 | 250 | 645 | 845 | 406 |
25 | 425 | 857.5 | |||||
300 | 12 | 16 | 455 | 270 | 725.5 | 953 | 406 |
25 | 485 | 953 | |||||
※DN600 available upon request | |||||||

